Kameralna inwestycja
w świetnie skomunikowanej lokalizacji.

Wysokie sufity
2,83 m

Winda

Rozległe balkony
i tarasy

Duże komórki
lokatorskie

Garaż

Komfortowe
ogrzewanie podłogowe











Lokalizacja
dzięki bliskości komunikacji miejskiej i głównych arterii.
Miasta

Spacer

Przystanek tramwajowy
Przystanek autobusowy
Biedronka
Zjazd na DTŚ
Żabka
Castorama
Pumptruck
Apteka
Szkoła Podstawowa nr 2
Uniwersytet WSB
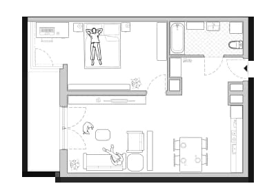
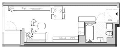
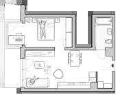
Mieszkania
Duże okna, szerokie tarasy, wygodne układy pomieszczeń.
| M44 | 455 tys.8,0 tys./m2 | 2 pokoje56,83 m2 | Komfortowe mieszkanie z dużym salonem idealne dla pary. | ![]() ![]() |
|---|
| M46 | 530 tys.8,6 tys./m2 | 3 pokoje61,86 m2 | Komfortowe mieszkanie z dużą przestrzenią do przechowywania. | ![]() ![]() |
|---|
| M47 | 540 tys.8,7 tys./m2 | 3 pokoje61,86 m2 | Mieszkanie z przemyślanym rozkładem pomieszczeń, idealne dla rodziny. | ![]() ![]() |
|---|
| M48 | 310 tys.11,2 tys./m2 | 1 pokój27,73 m2 | Kompaktowa kawalerka idealna dla singla. | ![]() ![]() |
|---|
| M50 | 2 pokoje48,26 m2 | Ciche, przestronne mieszkanie. Idealne dla pary. | ![]() ![]() |
|---|
| M51 | 2 pokoje37,82 m2 | Przemyślany układ mieszkania zapewnia optymalne wykorzystanie przestrzeni. | ![]() ![]() |
|---|
Historia zmiany cen dla inwestycji znajduje się tutaj.
Inwestycja ukończona.
Mieszkania gotowe do odbioru.
Trzymamy się trzech prostych zasad:
Proste warunki 
Zakup mieszkania jest dziś mocno skomplikowany a rynek często trudny do zrozumienia. A to przecież bardzo ważna życiowa decyzja i istotne, aby wybór mieszkania był mądry i świadomy. Dlatego upraszczamy procedury i tłumaczymy zawiłości. Wierzymy, że w komunikacji z klientami wystarczy dobry produkt i konkret.
Fachowość 
Jesteśmy inżynierami budownictwa i architektury, a nie typowymi deweloperami. W naszej pracy skupiamy się przede wszystkim na projektowaniu i budowie, a nie sprzedaży i marketingu. Stosujemy najnowocześniejsze technologie. Możesz nas zapytać o każdy szczegół techniczny i projektowy. Mamy to pod kontrolą.
Bezpieczeństwo 
Sami budujemy nasze inwestycje. Nadzorujemy każdy detal i dbamy o jakość na każdym etapie. Realizujemy maksymalnie 4 inwestycje w jednym czasie żeby każdemu mieszkaniu poświęcić pełną uwagę — od etapu projektu, po instalacje i wykończenie.















